Beboerforeningen Rønhaven
Rønhaven 1981-1991
Haderslev Kommune udskrev i forbindelse med en ny lokalplan, for området nordøst for Nederbyvænget, en konkurrence om en tæt lav bebyggelse i området.
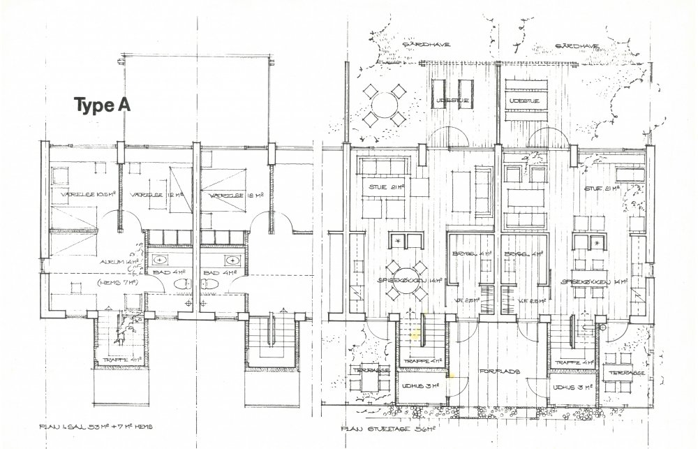
Den helt nystartede arkitekt Ole Weile indsendte et forslag om bygning af 4 huse i en blok. Blandt de indsendte forslag blev Ole Weile's udvalgt, men kun på betingelse af, at han stod for hele bebyggelsen på 35-40 boliger.
I foråret 1981 stod de 4 første boliger (nr. 89-95) klar til indflytning. I årene fra 1981 til 1991 blev området færdigbygget og Rønhaven fremstår i dag som en samlet bebyggelse på 36 boliger (se luftfoto her).
Rønhaven blev i 1987 præmieret af Haderslev Kommune for "utraditionelt boligbyggeri". Det synlige bevis på præmieringen kan ses ved indgangen til hus nr. 61.
Filosofien bag Rønhaven er, at det skal være et byggeri for de der ønsker at bo utraditionelt i et tæt miljø som lægger op til mere fællesskab end det traditionelle parcelhusbyggeri. Mange af tankerne i byggeriet er udviklet af beboerne og selv om facaderne på de enkelte "blokke" umiddelbart ser næsten ens ud, dækker de over en mangfoldighed af forskellige indretninger.
Beboerforeningen Rønhaven
Nederbyvænget 45 - 101
6100 Haderslev


